Les infos Essentielles
Au 5ème et dernier étage d'un immeuble ancien de caractère de très bon standing, nous vous présentons cet incroyable appartement de 42,75m2 selon la loi carrez et 50m² au sol. Ses atouts sont nombreux et rares : une exposition traversante permet un ensoleillement constant tout au long de la journée, un grand vélux de toit offre le ciel à portée de mains, le calme présent dans cette impasse privée vous offre un silence rare dans ce quartier vivant.
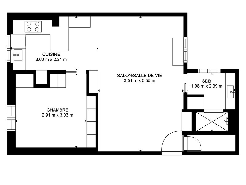
Il propose une belle pièce de vie traversante de 26,85 m2 avec cuisine américaine sur mesure entièrement équipée. Le volume de la pièce est impressionnant car il offre un toit « cathédrale » de 3,30 mètres avec un grand vélux en toiture. On retrouve également une chambre à coucher principale avec des rangements intégrés sur mesure, une salle de douche avec fenêtre et un wc indépendant . La hauteur sous plafond a permis la création d'une mezzanine accessible depuis un escalier en bois qui offre un second espace de couchage d'appoint.
Cet appartement se situe dans une impasse totalement sécurisée, calme et avec jardin.
Le bien est en parfait état, sans travaux à prévoir. C'est un produit coup de coeur de notre agence.
Les informations sur les risques auxquels ce bien est exposé sont disponibles sur le site Géorisques
Localisation Du bien
-
Commerces et santé
-
Loisirs
-
Ecoles
-
Transports
-
Pratique
Les infos Energetiques
Logement à consommation énergétique excessive : classe F
Montant estimé des dépenses annuelles d'énergie de ce logement pour un usage standard est compris entre 1 100 € et 1 500 € . 2021 étant l'année de référence des prix de l'énergie utilisés pour établir cette estimation.
Détails des diagnostics énergétiques
Logement à consommation énergétique excessive : classe F
Montant estimé des dépenses annuelles d'énergie de ce logement pour un usage standard est compris entre 1 100 € et 1 500 € . 2021 étant l'année de référence des prix de l'énergie utilisés pour établir cette estimation.
