Les infos Essentielles
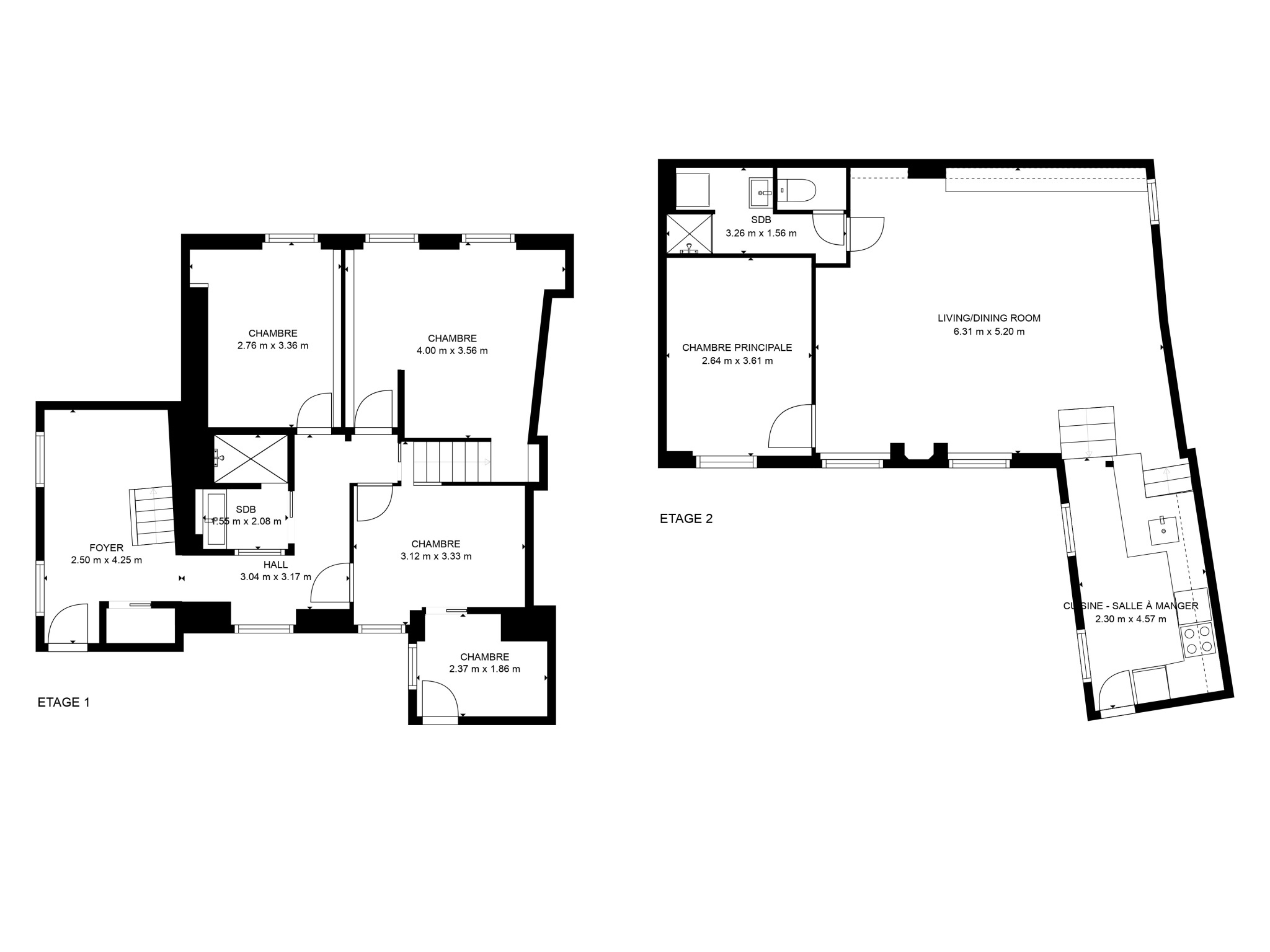
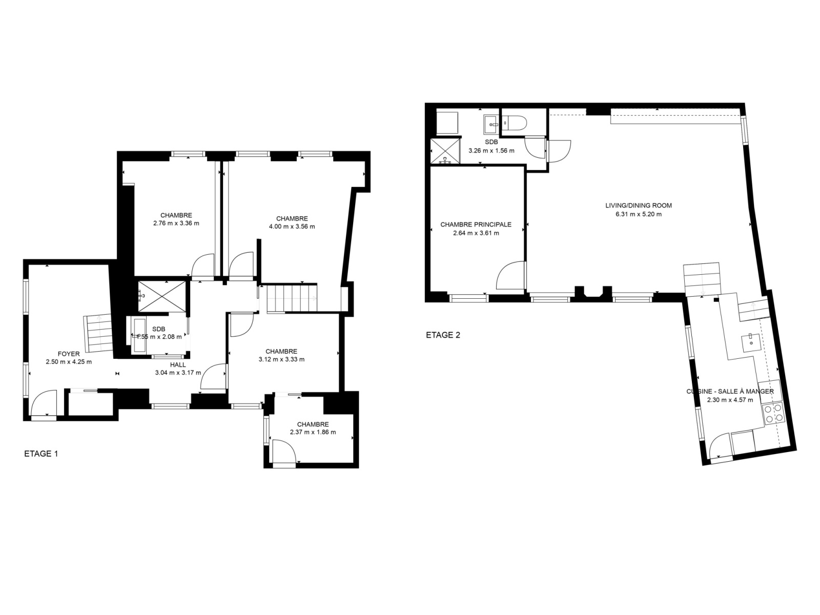
Cet appartement familial est aussi authentique que charmant : vue ciel et calme sont au rendez vous. Il s'agit d'un bien en duplex situé au 3ème et 4ème étage avec un ascenseur dans un immeuble ancien. Il mesure 96,68m² selon la loi carrez et 106,85m² au sol et propose une hauteur sous plafond de 2,70mètres.
Les amateurs d'espace non conventionnels seront conquis : sa distribution et son cachet le rendent unique . Au 4ème étage, il propose une belle réception, une cuisine semi-ouverte, une chambre parentale avec dressing, salle d'eau et un wc. Au 3ème étage sont présents un bureau, trois chambres , une seconde salle d'eau et un second wc. Il réunit deux qualités très importantes : il est à la fois calme car entièrement sur cour et aussi très lumineux . La réception offre des vues ciel et une double exposition Ouest en principale et Sud en secondaire . Il possède de très nombreuses fenêtres et la lumière circule de manière très agréable dans toutes les pièces.
Ses poutres, son parquet, sa distribution complètent le cachet de cet appartement. Il est possible de rentrer par chaque étage.
Une cave et un local à vélo sont présents.
Localisation Du bien
-
Commerces et santé
-
Loisirs
-
Ecoles
-
Transports
-
Pratique
Les infos Energetiques
Pièce par laquelle on entre en bas de l'escalier
8, 81 m² LOI CARREZ 13,15 m² AU SOL Pièce située au 3ème étage
Chambre parentale avec dressing ( salle d'eau et wc très proche ) Cette chambre est situé au niveau supérieur ( actuellement chambre parentale)
8,17m² LOI CARREZ 8,37 m² AU SOL
11, 26m² LOI CARREZ 15, 02 m² AU SOL Chambre située au premier niveau
